Монолитное перекрытие по профнастилу — подготовка
Готовое покрытие одновременно является полом вышележащего помещения или потолком той комнаты, которая находится ниже, — это и несущая, и ограждающая конструкция.

Качество возведения монолитной плиты влияет на безопасность эксплуатации всего дома, поэтому так важно провести соответствующий спектр подготовительных мероприятий:
- расчет несущей конструкции и несущей способности. Ошибки, допущенные на этом этапе, ведут к провисанию плит на длинных пролетах, увеличению толщины плиты, после чего следует рост трудозатрат и финансовых издержек;
- расчет материалов;
- для опоры перекрытия необходимо предусмотреть специальные закладные и «карманы» в стенах и столбах, что должно быть отмечено в чертеже.
Размеры листов и расчет количества материала для кровли из металлопрофиля
Внешне профилированный лист может принимать волнистую или трапециевидную форму. Этот материал используется, для того чтобы быстро возвести то или иное сооружение (сарай, беседка, навес), жилой дом и даже для промышленных строений. Однако до того как купить материал и смонтировать крышу, необходимо рассчитать количество необходимого материала. Подсчет количества листового материала следует проводить по следующим причинам:

Размеры листов профлиста.
- Во-первых, правильность расчета не позволит вам потратить лишнее количество финансовых средств, так как вы уже точно будете знать, сколько именно материала вам нужно, и, как следствие, не придется переплачивать за превышение нормы. При использовании такого строительного материала для кровли, как металлические профили, нужно знать некоторые его особенности. У металлопрофиля присутствуют свои собственные параметры, например, дополнительные ребра жесткости, ширина пролета листа достигает более 3 м. Зная эти размеры и проведя оплату будущей кровли из профлиста, вы сможете снизить затраты, охватывающие данное мероприятие.
- Во-вторых, без предварительного подсчета или же при неправильном расчете материала может оказаться недостаточно, и придется покупать недостающее количество листов, а это пустая трата времени и денег. Если сооружается прямоугольная двускатная крыша, то расчет можно сделать своими силами, не прибегая к помощи специалистов и техники. Тогда же, когда планируется более сложная конфигурация крыши, может помочь или профессионал в данном деле или специальная программа.
Расчет площади покрытия
Расчет площади крыши неминуем в любом проектирования навеса. Если поверхность дома будет отображена в односкатной плоскостью, тогда Вам крупно повезло с вычислениями.
В подобных условиях измерьте длину и ширину сооружения, сложите показатели условных свесов и затем два результата умножьте один на другой.
Когда же дело касается кровли, тогда следует использовать в расчете еще несколько позиций, среди которых угол наклона того или иного элемента. Прежде всего, рекомендуем все емкие детали покрытия разделить на определенные части (к примеру на треугольники).
В случае с двускатной поверхностью, следует умножить площадь каждой наклонности по отдельности на косинус наклонного угла. Наклонный угол — это цифра, взятая с пересечения ската и перекрытия. Что касается измерения длины одной наклонной, то упомянутый параметр следует фиксировать на имеющемся расстоянии от конька до края карниза.
Расчет площади кровли
Следовательно, алгоритм решения во всех проектах, в которых используются скатные стрехи — аналогичен. По завершению отмеченных действий, для того чтобы узнать площадь домового купола Вам понадобится просуммировать полученные результаты.
На стройскладах и в соответствующих магазинах могут продавать скаты с формой неправильного многоугольника. В таком случае вспомните совет, который уже звучал в материале — разделите плоскость на одинаковые геометрические фигуры и после окончания расчетов просто прибавьте их между собой.
Нагрузки, воздействующие на крышу
Вероятно, что когда дело доходит до выбора типа крыши и кровли, следует руководствоваться не только визуальными требованиями
В первую очередь необходимо уделить внимание изучению вопроса нагрузки на вальму
ОБРАТИТЕ ВНИМАНИЕ!
На кровлю влияют не только осадки и их объемы — температурная нестабильность и всевозможные причины физико-механического происхождения также оказывают серьезное давление на поверхность.
Причин и источников воздействия много, но ведущими является снег и ветер. Что уж говорить, если строительные нормы требуют в обязательном порядке высчитывания снеговой нагрузки на будущий навес. Расчет имеет ярко выраженную индивидуальность в виду различий объемов снегового покрова, который выпадает в том или ином регионе.
Ветровая нагрузка не такая уж безобидная, как может показаться на первый взгляд. В некоторых случаях приходится говорить и о нагрузке из-за веса одного из элементов вальмы. Чаще всего в роли утяжелителя выступает обрешетка или кровля.

Ветровая нагрузка
Актуальным вопрос нагрузки предстает перед теми, кто собирается использовать чердачное помещение круглогодично. В таком случае необходимо масштабное утепление (скаты, боковые стены и др.), что приводит к существенному увеличению силы давления на поверхность стен. Когда же чердак не планируют переводить в жилое помещение, тогда утеплять нужно одно лишь перекрытие.
Несущая конструкция стрехи также может оказывать ощутимую нагрузку собственным весом
В сложившейся ситуации показатели нагрузки определяют принимая во внимание усредненную плотность материалов и проектные значения параметров конструктивного и геометрического характера

Снеговая нагрузка
Все вышеперечисленные факторы воздействия не так просты в анализе, но к счастью, уже давно разработаны все необходимые СНиПы, к нормам которых можно обратиться в любой момент.
Комментарии к расчету кровли через онлайн калькулятор
Важно выбрать правильный тип крыши Вашего дома в настройках нашего калькулятора, так как стоимость работ зависит от типа не только от используемых материалов (металлочерепицы или гибкой черепицы), площади кровли, но и от сложности конструкции крыши (шатровая, вальмовая, двухскатная или четырехскатная). Все эти нюансы должны быть отражены в смете
Кровля служит главной защитой дома от ветра, снега, дождя и солнечных лучей. Поэтому правильный выбор материала имеет главное значение при строительстве крыши. Чтобы узнать затраты, необходимо выполнить замеры с учетом геометрических особенностей кровли и таких элементов, как окна и люки.
Выполните подсчеты более одного раза, чтобы убедиться в отсутствии ошибок. Иначе можно купить материалы, которых не хватит для кровельных работ.
Помните, что онлайн калькулятор для расчета крыши дает лишь ориентировочные расчеты, которые требуют подтверждения от наших специалистов.
Погрешность в расчетах может составлять 5-10%, так как на итоговую цену повлияет еще и Ваш выбор бренда материала (или толщина металлической черепицы).
Программы расчетов
Итак, теперь вы знаете, как произвести расчет необходимых для крыши из профлиста материалов вручную. Однако в последнее время существует множество компьютерных программ, которые облегчают эту работу в значительной степени. В частности, есть специальные программы, которые можно скачать из Интернета, есть и онлайн калькулятор расчета материалов на крыше.
Такие, компьютерные программы, имеют целый ряд преимуществ. Во-первых, все полученные результаты будут точными, стопроцентными. Во-вторых, вы можете не опасаться ошибок при расчете даже самых сложных типов крыш. Эти программы способны рассчитать все в мельчайших деталях – нахлесты, кровельные уклоны, замки и так далее. Конечно же, производят они и расчет профилированных листов.
https://youtube.com/watch?v=-6j7L6Kxxf4
Вы с легкостью рассчитаете одновременно материальный расход на несколько построек. Вы также оцените возможность менять в программе расположение и крепление листов, размеры кровельного материала. Это даст возможность подобрать наиболее подходящий материал, с которым крыша будет не только функциональной, прочной, но и весьма привлекательной. Вы можете заняться не просто расчетом материала, а с помощью программы подобрать самые разнообразные цвета, оттенки, скомбинировать немыслимые узоры на своей будущей кровле.
Как утверждают специалисты, применять программы для перекрытия небольших зданий, не совсем целесообразно. А вот при сооружении больших построек, такие программы обязательно пригодятся вам, выручат вас и во многом облегчат работу.
Инструкция к калькулятору
Результат расчета выводится в режиме онлайн после того, как Вы заполните графу “Исходные данные” и нажмете на кнопку “Рассчитать”.
Тип 1
Количество скатов – выбирается “один” скат, когда у Вас самостоятельная крыша без приставных элементов (например, крыша гаража); “два” – в том случае, если Вы хотите сосчитать количество профлиста для сложной крыши, в которой помимо основных скатов есть еще и второстепенные (большинство крыш коттеджей).
Длина здания (L) – длина стены по наружным граням, расположенная перпендикулярно скату крыши.
Ширина здания (K) – длина стены по наружным граням, расположенная параллельно скату.
Длина кровли (Е) – скат крыши в плане не всегда имеет прямоугольную форму и поэтому, для того, чтобы учесть изменения геометрии крыши при расчете площади кровли, вводится данный параметр. Благодаря ему Вы, например, сможете рассчитать площадь кровли таких сложных крыш, как:
1 вариант (Е = 0).
2 вариант (Е
3 вариант (E
4 вариант (E = 0).
В том случае, если у Вас простая прямоугольная кровля, то Е = L + Z + Z.
Высота кровли (H) – расстояние между двумя крайними точками вверху и внизу ската крыши.
Свесы 1 (X) , 2 (Y) и 3 (Z) – расстояние от наружной стены до края крыши или кровельного покрытия.
Площадь проемов (S) – сумма всех площадей проемов и вырезов. Например, это могут быть оконные проемы или вырезы, которые образовываются из-за появления сложных элементов на крыше (таких, как, например, в варианте 1 или 2 см. выше). Для рисунка S = S1 + S2.
Длина листа (A) – размер листа вдоль волн.
Ширина листа (В) – размер листа поперек волн.
Нахлест вдоль (I) – на какую величину один профлист будет нахлестываться на другой вдоль волн. Зависит от того, сколько волн будет нахлестываться.
Нахлест поперек (J) – величина, на которую вышележащий лист нахлестывается на нижележащий.
Данная величина зависит от угла наклона крыши:
- меньше 14º – нахлест делается не менее 200 мм;
- угол от 15º до 30º – величина нахлеста должна быть 150-200 мм;
- больше 30º – нахлест можно делать 100-150 мм.
Цена за 1 м2 – указывается в том случае, если профнастил (профлист) продается в м2.
Цена за 1 шт – указывается в том случае. если материал продается поштучно.
Ну, а про саморезы все и так понятно.
Тип 2
Здесь и дальше будут рассматриваться только те переменные калькулятора, которые не были рассмотрены ранее в предыдущих типах крыш.
Использование обрезков – при покрытии крыши кровельным материалом неизбежно остаются остатки, в нашем случае, это обрезки профнастила (профлиста). Эти обрезки можно выкинуть, а можно использовать в покрытии крыши. Правда, в большинстве случаев применять обрезки или не применять зависит от размеров самих обрезков, которые вы можете узнать в графе “Результат” при выборе варианта “Да”.
Примечание: укладка профнастила (профлиста) в том случае, если образуются обрезки, осуществляется горизонтально снизу вверх.
Тип 3
Ширина здания (К) – расстояние от внешней грани наружной стены до конька крыши со стороны меньшего ската.
Ширина здания (М) – расстояние от внешней грани наружной стены до конька крыши со стороны большего ската.
Высота кровли (Н1) – высота меньшего ската крыши.
Высота кровли (Н2) – высота большего ската.
Что касается обрезков то они здесь такие:
Лист 1 и 3 – это листы, обрезанные поперек волн после укладки их по большему и меньшему скатам крыши по направлению стекания воды.
Лист 2 – боковые обрезки.
Тип 4
Ширина (К1) – размер по внешним граням наружных стен перпендикулярных скатам крыши.
Ширина (К2) – расстояние между переломами крыши.
Высота кровли (Н1) – высота нижнего ската крыши после перелома.
Высота кровли (Н2) – расстояние от конька до места перелома крыши.
Следующие типы крыш мы рассматривать не будем, так как их исходные данные заполняются аналогичным образом, как описано выше (см. рисунок).
Результат
Здесь рассмотрим лишь некоторые значения.
Площадь кровли – площадь, которую необходимо покрыть кровельным материалом.
Количество листов – целое требуемое количество листов необходимо для покрытия крыши. Рассчитывается с учетом обрезков и без их учета, а также величин нахлестов.
Площадь листов – требуемое количество листов, умноженное на площадь одного листа.
Стоимость из расчета на 1 м2 – результат выводится в том случае, если вы покупаете профнастил (профлист), цена которого указана за 1 м2. Соответственно, должна быть заполнена соответствующая графа в “Исходных данных”.
Стоимость из расчета на 1 шт – общая стоимость всех листов. Результат выводится только, если цена указана за 1 шт.
Количество саморезов рассчитывается из условия, что на 1 м2 листа приходится 8 таких крепежных элементов.
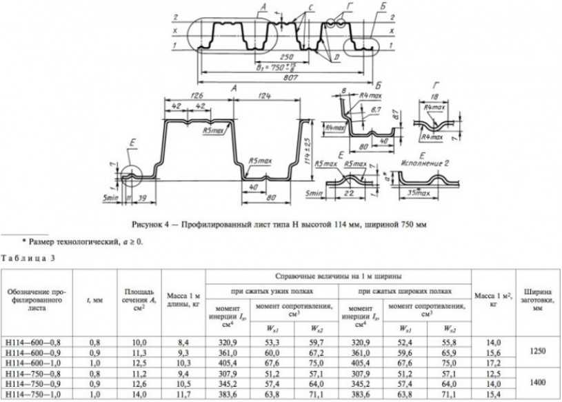
Технические характеристики
К техническим характеристикам несущих профилированных листов принято относить:
- Толщину;
- Высоту профиля;
- Длину, ширину;
- Вес.
Перечень характеристик также включает наличие или отсутствие полимерного покрытия.
Толщина – важный параметр, влияющий на объем нагрузки, которую может выдержать материал. Ее параметр зависит от аналогичного параметра стали, использованной для производства изделия. Толщина влияет на вес. Соответственно, чем больше толщина листа, тем больше он весит.
Высота профиля тоже влияет на способность профнастила выдерживать определенные нагрузки. Чем она выше, чем более прочным является материал. Ее значение можно сразу же определить по марке профнастила. Пример – Н114. Цифры рядом с буквой Н указывают на высоту профиля в миллиметрах.
Длина – до 12 метров. Листы могут продаваться определенной длины: 3, 4, 5 м и т.д. Ассортимент в тех или иных строительных магазинах, как правило, ограничен по такому параметру. Однако есть возможность воспользоваться услугой резки в длину. Такую услугу может оказать производитель металлоизделий, в частности, компания «Профкомплект», занимающаяся изготовлением профилированных металлических листов. С помощью соответствующего производственного оборудования выполняется резка в длину, которая указывается клиентом.
Ширина – габаритная или монтажная. Габаритная или общая – полная ширина изделия, от края до края. Монтажная (рабочая) – общая ширина материала, уменьшенная на расстояние, которое требуется для соединения/крепления листов между собой. Такая ширина всегда меньше полной. Разница между указанными параметрами составляет примерно 50 мм. Может больше, что зависит от параметров листа определенной марки. При расчете нужного количества материала следует ориентироваться именно на монтажную ширину. В противном случае при непосредственном использовании листов по назначению их может просто не хватить.
Профлист несущий Н75, Н60, НС35 и других марок выпускается оцинкованным или с полимерным покрытием. Возможен вариант с покрытием Printech. Оцинкованный имеет 1 цвет – серо-серебристый. С полимерным покрытием разнообразен по цветовой гамме. Многообразие цветов позволяет подобрать материал нужной расцветки и гармонично его вписать в дизайн здания, рядом расположенных сооружений и т.д. Printech – особенное покрытие, имитирующее структуру дерева или камня.
Нормы расхода профлиста при монтаже кровельного покрытия
Важнейшей характеристикой любого кровельного покрытия является его герметичность. Вода не должна попадать в подкровельное пространство ни во время самых сильных ливней или снегопадов, ни при весеннем таянии снега.
Но кровельное покрытие защищает не только чердак или мансарду, профнастил должен быть смонтирован так, чтобы на фасад здания попадало минимальное количество дождевой воды. Поэтому при монтаже профнастила должны обязательно выполняться несколько основных правил.
Вертикальный нахлест
В первую очередь следует учитывать, что при укладке на крышу, профилированные листы обязательно должны перекрывать друг друга. Причем нахлест выполняется как между соседними листами, так и между верхним и нижним рядами профнастила. В зависимости от величины нахлеста меняется и норма расхода профнастила на кровлю.
Расход профнастила на 1м2 кровли с учетом вертикального нахлеста
Размер нахлеста между рядами профилированного листа зависит от уклона крыши. Чем меньше угол наклона, тем больше профиль верхнего ряда должен перекрывать нижний лист.
Фронтонный свес
Выступать за пределы пятна здания кровельное покрытие должно не только в районе карниза, но и на фронтонах здания. Называют этот выступ фронтонным свесом. Чаще всего используют два варианта устройства фронтонного свеса — с установкой ветровой доски или специальной ветровой планки. При этом расход профлиста на кровлю в обоих случаях различен.
Из всего сказанного выше можно сделать вывод, что при расчете нормы расхода профлиста на кровлю нужно учесть:
- Величину вертикального нахлеста;
- Величину горизонтального нахлеста;
- Размер фронтонного свеса;
- Размер карнизного свеса.
Проще всего это сделать, нарисовав схему раскладки листов профнастила, учитывающую все характеристики конкретной крыши.
Если разделить площадь покрытия, рассчитанную согласно схеме, на площадь одного листа профнастила, у нас и получится норма расхода профлиста на 1м2 кровли. Площадь листа можно узнать у продавца профнастила, и она будет различной в зависимости от марки и высоты гофры или волны профилированного листа.
При этом нужно обратить внимание на то, что в технических характеристиках профилей обычно приводят величину полной и полезной площади листа. Полезная площадь всегда несколько меньше, поскольку она учитывает размер нахлеста между соседними листами профнастила в одном ряду
Если при облицовке фасада или устройстве забора также планируется использовать профнастил, расход на м2 определяется по тому же принципу. Разница лишь в том, что при расчете расхода профиля для вертикальных поверхностей нужно учитывать только нахлест между листами профнастила. При этом, для вертикальной установки профнастила, нахлест между рядами профиля может быть в 2 раза меньше.
При заказе материалов для кровельного покрытия, фасада или забора, лучше всего сразу приобрести и специальный крепеж для профнастила, расход которого составляет приблизительно 6-8шт на 1м2 поверхности.
Рекомендуемые статьи
- Срок службы оцинкованного профнастила Каков срок службы оцинкованного профнастила? Какие покрытия профлиста бывают? Насколько каждое из них увеличивает срок эксплуатации профнастила? И где их лучше применять? Читайте в статье.
- Профнастил ГОСТ 24045-2010 Нормативные документы, регулирующие производство профнастила: действующий ГОСТ 24045-2010 и его устаревшая версия 24045-94. Чем они отличаются? И в каких случаях необходимо покупать профлист, изготовленный по ГОСТ?
- Оцинкованная сталь ГОСТ 14918-80 В статье рассматривается ГОСТ 14918-80 на оцинкованную сталь. Вы сможете бесплатно скачать его в формате PDF, а также ознакомится с характеристикой и содержанием документа
Сайт oprofnastile.ru — актуальная и полезная информация о профнастиле, его монтаже и использовании, советы профессионалов и пошаговые инструкции для Вас.
Все текстовые материалы, размещенные на сайте, ДЕЙСТВИТЕЛЬНО защищены согласно действующему законодательству, на что имеются все необходимые документы, в том числе договора.
Тем не менее, если вы хотите поделиться каким-либо материалом со своими читателями, вы можете перепечатать его. При этом вы обязаны снабдить статью незащищенной от индексирования гиперссылкой на страницу данного сайта, откуда был скопирован материал. На одном ресурсе можно разместить не более 5 статей, скопированных с данного сайта.
Расчет монолитного перекрытия по профлисту
Устройство монолитного перекрытия по профнастилу представляет собой опалубку из металлического профилированного листа с уложенным поверх нее арматурным каркасом из металлических стержней.
Опирается эта конструкция на продольные металлические балки. Так монолитное перекрытие по профлисту передает нагрузку, действующую на перекрытие, на опорные конструкции каркаса и фундамент здания.
Профиль опалубки из профнастила, сечение металлических стержней арматуры и толщина монолитного перекрытия определяются эксплуатационной нагрузкой и величиной пролета между опорными балками. Толщина плиты обычно определяется соотношением 1:30. То есть, если длина пролета равна 6,0 м, то слой бетона должен быть не меньше 200 мм.
При расчетах учитываются размеры будущего здания, расчетные нагрузки на перекрытия и вес самих строительных конструкций. Все это влияет на выбор сечения и профиля металлических балок и колонн каркаса, а также на характеристики фундаментов здания.
Монолитное перекрытие по профнастилу относится к особо ответственным строительным конструкциям, поэтому работы по монтажу таких конструкций выполняются только при наличии проектной документации на строительство. Проектная документация на монолитное перекрытие по профнастилу и расчет прочности металлических конструкции выполняются на основании СНиП II-23-81 «Стальные конструкции» и СНиП «Железобетонные и бетонные конструкции».
Поскольку эти расчеты достаточно сложны и трудоемки, при разработке рабочей документации на строительство и расчете нагрузок проектировщики используют специальное программное обеспечение, в том числе систему автоматизированного проектирования САПр. В состав рабочей документации входят чертежи опалубки под монолитное перекрытие по профнастилу, чертежи армирования, все необходимые расчеты и спецификация материалов.
На этапе проектирования выполняется и технико-экономические расчеты. Они подтверждают насколько обосновано применять для данного конкретного сооружения монолитное перекрытие по профнастилу, цена которого несколько выше стоимости монолитных железобетонных конструкций с обычной разборной опалубкой.
Если вы уверены в своих силах и хотите самостоятельно произвести расчет монолитного перекрытия по профлисту, то советую использовать пособие 1987 года. Пусть Вас не смущает его возраст — за эти годы в строительстве мало что изменилось. На текущий момент— это самая подробная и точная из существующих инструкций по данной теме.
Однако Вы должны понимать, что неправильный расчет перекрытия — это не только дополнительные расходы, но и реальная опасность для жизни. Поэтому если Вы раньше не сталкивались с подобными расчетами, ради Вашей безопасности, настойчиво рекомендую обратиться к профессиональным проектировщикам.






























