Как установить отлив на раму?
Довольно часто бывает такая ситуация, когда замер окна сделан неправильно по высоте. Как замерить окно, можно почитать тут. Низ рамы встает ниже этой четверти. Сбивать бетонную четверть, мало приятное занятие. И монтажнику остается один вариант — устанавливать отлив на раму.
Как установить отлив на раму правильно? Хотя сам способ вроде бы считается неправильным, но при установке важно соблюсти некоторые обязательные условия :
- Нельзя перекрывать дренажные отверстия.
- Герметизация стыка между крепежной полкой и рамой силиконом хорошего качества.
- Расстояние между шурупами ( клопы 4,2 х 13 ) около 200 мм.
- Шурупы промазать силиконом.
Непременно скажу о плюсах этого варианта, как ни странно они есть:
дополнительное утепление зоны подоконного профиля монтажной пеной ( Ширина рамы, как правило 60 мм, а ширина подоконного профиля 30 мм
Утепление этого пространства пеной, дает лучшую теплоизоляцию ), смотри картинку выше
высота окна больше на 2 — 3 см, что для ряда клиентов очень важно ( дополнительный свет )
подоконник встает ниже ( выглядит эстетичнее )
устраняется наледь или конденсат на стеклопакетах ( если имеет место плохая изоляция между рамой и подоконным профилем )
Монтаж на раму
Бывает, что из-за неправильно сделанных замеров высоты окна нижняя часть рамы находится под нижней четвертью. В этом случае необходимо сбивать бетонную четверть. Однако есть и другой вариант — монтаж на раму. Фактически это неправильно, но если уж прибегаете к способу, обеспечьте следующее:
- Не перекрывайте дренажные отверстия.
- Тщательно герметизируйте участок между крепежной полкой и рамой.
- Между шурупами оставьте 200 мм, а крепеж промажьте силиконом.
Это один из лучших способов. Однако и он не идеален. Плюсы такого способа следующие:
- Большая высота окна.
- Возможность дополнительного утепления подоконного пространства монтажной пеной.
- Более эстетичный внешний вид подоконника, который расположен ниже.
- Устранение наледи и конденсата на стеклах.
В случае правильной установки под окном не будет попадания на стену воды. Также изделие не станет причиной шума в ветреную погоду. Некачественный монтаж влечет проникновение влаги в область нижнего монтажного шва, из-за чего влага контактирует с монтажной пеной, та сыреет и начинается разгерметизация. Как показывает практика, самостоятельная установка в большинстве производится с рядом нарушения технологии. То же относится и к отделке откосов. Рекомендуется нанять промышленных альпинистов.
Правильная установка и правильная форма верхних отливов на балконах и лоджиях
Самое главное в правильной установке верхних отливов на балконах и лоджиях — это конфигурация или форма отлива. И эта форма напрямую зависит от типа конструкции балкона или лоджии.
За свою более чем 10-ти летнюю практику я повидал много балконов и лоджий. И пришел к выводу, что существует всего лишь два основных типа конструкции балконов и лоджий . У первого типа ограждение установлено внутри проема, а у второго типа ограждение крепится снаружи проема.

А вот самая правильная форма верхнего отлива.

Вынос у верхнего отлива должен быть не более 100 мм. Иначе, при сильных ветрах может иметь место вибрация или стук. Окрас лучше заказывать с двух сторон (односторонний отлив не на много дешевле).
Толщина метала выбирается максимально возможная (чем толще, тем жестче он будет)
Важное значение имеют углы 110 и 90 градусов
А теперь посмотрим на узел примыкания правильного верхнего отлива к бетонной плите и к окну.

Итак, как видно из рисунка — это оптимальный вариант установки верхнего отлива на балконах и лоджиях. И в зависимости от конструкции проемов, замерщики и монтажники должны стремиться именно к такому варианту исполнения верхних отливов и к их правильной установке.
Здесь не будет промерзаний, продуваний и протечек. Лента ПСУЛ не пропускает воду, но при этом выпускает наружу влагу, которая может находиться в пене. Можно сказать почти монтаж по ГОСТу.
Недостаток такого варианта только в одном — сложность монтажа. Потому как, крепится такой верхний отлив шурупами со стороны улицы. И для этого монтажнику нужна определенная квалификация. А точнее отсутствие боязни высоты и соблюдение техники безопасности.
Еще один важный момент — это приклеивание ПСУЛа. Поскольку, он имеет свойство расширяться, а в теплое время года он расширяется очень быстро, желательно успеть закрепить отлив до окончательного расширения ПСУЛа, так сказать в сжатом состоянии.
А теперь давайте вернемся к первому рисунку, где я говорил, что форма верхнего отлива зависит от типа конструкции проема. Из этого рисунка видно, что для нашего оптимального правильного отлива отлично подходит проем, где ограждение расположено внутри.
И здесь начинается самое интересное. А как же такой отлив установить в проем, где ограждение находится снаружи? Вопрос даже не в том, как установить отлив, а в том, что для правильной его установки, надо смещать ПВХ окно внутрь помещения. И при этом возникают следующие сложности:
- Нужно сооружать новую опорную конструкцию под ПВХ окно из газобетонных блоков, или из кирпича, или из метала.
- Произойдет уменьшение полезной площади балкона или лоджии (от чего клиенты, как правило категорически отказываются).
И последний довод, не в пользу этого варианта, пожалуй — самый главный. Редко, когда удается уговорить клиента сместить ПВХ окно на 10 — 15 см внутрь помещения.
И вот тогда-то и возникают различные, неправильные или нехорошие варианты, которые мы сейчас и рассмотрим.
Отливы для полукруглых или фигурных окон
Круглое окно с отливом
Не все оконные проёмы имеют прямые углы и линейную форму. Фигурные окна также нуждаются в водоотливах. Установка отливов на нестандартные проёмы должна производиться только квалифицированным мастером с большим опытом работы.
Идеально подойдут изделия из металлов и пластика. Это гибкие материалы, которым можно придать любую форму. Откосы из меди отличатся наибольшей пластичностью. Она легко принимает любую форму. Если такой откос не может быть установлен исходя из бюджета, то стоит обратить на пластиковую модель.
В любом случае требуется выезд мастера замер и индивидуальный заказ по параметрам проёма.
Пошаговая технология монтажа
Установка отлива выполняется после монтажа металлопластиковых окон, когда они уже постояли несколько дней, монтажные растворы и пена уже высохли. Все излишки смесей аккуратно удаляются острой отверткой или полотком с зубилом. Засохшая монтажная пена срезается острым ножом так, чтобы не было выступающих нюансов.
- По нормам отлив должен входить в боковые стены минимум на 2 сантиметра. Для этого тонкой отвёрткой или дрелью необходимо аккуратно выбить ровные отверстия на уровне будущей поверхности.
- Даже если изделие было выполнено строго по заданным техническим параметрам, может возникнуть ситуация, что где-то оно все равно не входит в пазы. Для этого необходимо устранить все мешающие погрешности с помощью инструмента. Желательно начинать со стены – аккуратно убрать весь строительный мусор с рабочей поверхности, сбить все выступы, пыль смести веником или щеткой. Подоконник можно подрезать или подтереть ножовкой по металлу или наждачной бумагой соответственно. Главное – не поцарапать поверхность, а весь оголившийся металл закрасить эмалью соответствующего оттенка.
- После того, как и поверхность, и отлив готовы, можно приступать непосредственно к монтажу. Стену, на которую будет крепиться отлив, нужно немного смочить водой. К влажной поверхности гораздо легче приклеивается монтажная пена – а именно она будет основным фиксирующим средством. Подоконник аккуратно вставляется в подготовленные пазы – по бокам это будут пробитые полосы, а со стороны окна – специально созданная для отлива ниша. Зазоры должны быть минимальными, подоконник не должен в них ходить ходуном, но и притираться не нужно, ведь это повредит эмалированную поверхность.
- Задается угол наклона – он должен быть направлен от стены, чтобы влага сливалась сразу на землю. Горизонтальный наклон замеряется с помощью строительного уровня. Наклон во все стороны регулируется пластиковыми пластинами, которые двигаются по рабочей поверхности в зависимости от необходимого результата. Наклон должен быть таким, чтобы выставленный подоконник можно было придавить обернутыми в тряпку кирпичами. Это позволит его надежно зафиксировать при расширении монтажной пены.
- После того, как отлив выставлен и закреплен, полость под ним тщательно заполняется монтажной пеной – это и приклеит откос, и обеспечит изоляцию оконного проема от влаги и сквозняков.
- После того, как отлив выстоится несколько дней, кирпичи снимаются, а все швы вокруг затираются и шпаклюются. После завершения всех работ отлив полностью готов к эксплуатации.
Советы по комплектации
Тем, кто хочет сделать максимально функциональную конструкцию водоотлива по бюджетным расценкам, нужно обратиться к нам. Мы предлагаем укомплектовать стальные и алюминиевые конструкции опорными кронштейнами и отливными накладками. Качественная продукция производится компанией Алютех.
Для случаев, когда длина водоотлива превышает 1300 мм, использование кронштейнов усилит его жесткость и придаст шумопоглощающие свойства. Используют их также в случае применения консольной установки. Отливные накладки из пластика АВС долго сохраняют свой цвет, устойчивы к перепадам наружной температуры, улучшают эксплуатационные свойства водоотлива. Относительно продукции Алютех наши клиенты часто задают вопрос: «Установка отливов: цена?». Из опыта работы можно сказать, что цена такого водоотлива по прайсу будет в 1,5-2 раза выше по сравнению со стальным. Однако затраты оправдают себя длительным сроком эксплуатации и безупречным внешним видом. Наши специалисты владеют самыми современными способами их установки и гарантируют максимальную функциональность.
Какие различают виды?
- Пластиковые – встречаются не столь часто, как другие типы водоотливов, но хорошо вписываются в композицию с металлопластиковыми окнами, хорошо поглощают издаваемый каплями дождя шум.
- Полиэстеровые – производятся из оцинкованной стали с покрытием пластизолом. Преимущества — более аккуратный вид и сохранение чистоты за счёт грязеотталкивающих свойств.
- Алюминиевые – выпускаются разных цветов, изготавливаются из металлических листов, толщина которых не превышает 1 мм, однако цена по сравнению с другими аналогами значительно выше.
- Металлические из оцинкованного листа – наиболее распространённые благодаря сочетанию отличного качества и выполнения необходимых функций с ценой.
Самый дешёвый вид конструкции — из оцинкованного листа
Внимание
У любого типа водоотливов должны быть боковые загибы, расположенные снизу: они служат для отведения от окна влаги.
Как установить отлив на окно
Для того чтобы правильно установить отливную планку необходимо придерживаться определенного алгоритма:
- Замер;
- Разметка и подготовка отлива к монтажу;
- Крепление отливной планки;
- Тепло и шумоизоляция.
Процесс может показаться несложным. Но для правильной разметки и установки отливной планки необходимо иметь опыт в проведении таких работ.
Шаг 1. Замер
Чтобы определить размеры будущего отлива необходимо замерить два его основных параметрами – это длина и ширина. Определить длину изделия просто. Для этого потребуется узнать ширину оконной рамы и к этому размеру прибавить по 15 см с каждой стороны. Это позволит в дальнейшем вырезать подоконную планку таким образом, чтобы она максимально плотно прилегала к оконному проему.
Ширина измеряется при помощи рулетки или угольника.
Важно: стоит помнить, что для надежной защиты от влаги, отлив должен выступать от уровня стены не менее чем на 2 см
Шаг 2. Разметка и подготовка к монтажу
В магазинах продаются отливные планки различной длины и ширины. Они еще не имеют конечной формы. Для каждого окна необходимо разметить, разрезать и загнуть отлив индивидуально. Сделать правильную разметку достаточно сложно. Поэтому для установки отлива лучше воспользоваться услугами специалистов.
Важно: для нестандартных оконных проемов, которые имеют глубину более 400 мм, или ширину более 3 м, отливы изготавливаются под заказ. Если вы решили устанавливать отливы самостоятельно, то при разметке необходимо учитывать некоторые моменты:
Если вы решили устанавливать отливы самостоятельно, то при разметке необходимо учитывать некоторые моменты:
- Отлив должен выступать за боковые грани оконного проема на 5-10 см;
- Готовое изделие, в том месте где оно соприкасается с оконным проемом, должно иметь загиб. Он придает изделию жесткость и одновременно не допускает попадания влаги с торцов проема;
- Отлив должен быть отцентрирован по окну.
Разметка проводится при помощи карандаша или маркера. После разметки ножницами по металлу делаются необходимые разрезы. Как только заготовка разрезана, можно сразу загнуть отлив до необходимой формы. Готовое изделие необходимо приложить по месту установки, и проконтролировать правильность углов загиба. Правильно вырезанный отлив должен устанавливаться на свое место без каких-либо затруднений. В противном случае необходимо доработать изделие.
Шаг 3. Крепление отлива
Закрепить отливную планку можно саморезами ПШ 13 мм. Расстояние между ними не должно превышать 15 см. Если монтаж производится внахлест, то место соприкосновения отливной планки и оконного профиля герметизируется при помощи силиконового герметика.
Совет: в том случае, когда окно устанавливается в многоэтажном доме, крепление отлива производится в тот момент, когда окно уже полностью готово к установке. Отлив крепиться на профиль, и только после этого окно с установленным на неё отливом монтируют в проем.
Правильно закрепленный отлив должен иметь наклон. Это позволит стекать воде.
Шаг 4. Тепло и шумоизоляция
В качестве теплоизоляционного материала при установке отливной планки применяется монтажная пена. Она надежно приклеивает отлив к оконному проему и снижает шум, который возникает при попадании на отлив капель дождя. При нанесении монтажной пены необходимо максимально точно дозировать её количество. Недостаток пены снизит шумоизоляцию, а избыток может привести к тому что отливную планку выгнет.
Как правильно вести монтаж отлива пластикового окна
Во-первых, мы не видим никакой пароизоляционной пленки на шве рамы. Ее обычно строители не оставляют. Значит нам нужно пойти купить эту пленку (например, Стандарт от Робитекс), обезжирить и очистить поверхность. Но и это еще не все. Вы удивитесь, но оконный проем еще и нужно выровнять. Под этот момент по стандарту попадают все неровности и сколы более одного сантиметра. Выравнивается также внутренняя кромка оконной четверти, где будет положена ПСУЛ. Это нужно не только для получения гладкой поверхности. Имеются строгие требования к положению окна в пространстве. Общий уклон не должен превышать 4 мм на метр профиля (не более 8 мм всего).

То есть при помощи лазерного уровня нужно проверить прямизну оконного проема. Найденные недочеты исправляются любым подходящим составом. Например, Ремсостав от компании Крепс. Этот раствор набирает твердость 3 МПа за 10 минут. После этого стену можно будет долбить и сверлить
Разумеется, важно выполнить все согласно инструкции. Для этого оконный проем грунтуется по рекомендациям производителя смеси
Мы же советуем использовать деревянные правила, которые при необходимости ставятся на лепешки гипсовой штукатурки (все равно она понадобится при внутренней отделке).
Обратите внимание, что выравниванию подлежат и плоскости наклеивания пароизоляционной мембарны. А значит, до установки отлива мы начинаем готовить под него нижнюю поверхность оконного проема
Кроме того смотрим, прикрыт ли шов согласно рекомендациям стандарта пароизоляционной мембраной. Если чего-то строители забыли, мы должны это поправить. Что касается самого отлива, то нет нужды его ставить целиком на пену. Как у нас будет защищаться шов, если в подражание многим строителям сделать так, как было написано выше? То есть положить финишную и стартовую прямые со змейкой посередине?

При первом же дожде внутрь попадет влага. Затем ближайший мороз начнет разрушать монтажную пену. Если брать группу компаний Роботекс, то они вообще не рекомендуют при монтаже отлива применять полиуретан. Вместо этого вдоль внешнего края профиля наклеивается ПСУЛ Робибанд, который одновременно является и шумоизолятором, и гидроизолятором. В результате мы защищены от шума дождя, а оконный проем – от попадания влаги в нижний шов. После монтажа ПСУЛ будет некоторое время расширяться, поднимая отлив, что придаст его посадке нужную прочность. В остальном процесс проходит обычным порядком: формирования профиля, крепление его на шурупы к раме.
Аналогичным образом можно вести монтаж и с применением других материалов. Например, это могут быть шумоизоляционные полосы Линотерм. Как утверждает в своих видео А. Земсков, в домашних условиях выполнить процедуры наклеивания ленты достаточно сложно. Через какое-то время материал отслоится, и отлив вновь станет нас радовать звуками дождя. Лучше всего закупать профиль, где лента уже наклеена за нас сборщиком.
В то же время монтаж на пену никем не запрещается, просто нужно изолировать шов так, как это рекомендуется стандартом 30971. То есть с обеих сторон пена изолируется пленкой или ПСУЛ. В случае с отливом годится как раз второй вариант. Что касается пены, то она дополнительно будет глушить шум. И главное здесь не переборщить, чтобы отлив не был приподнят со своего посадочного места полиуретаном.
Монтаж откосов и отливов
Конечно монтаж откоса лучше доверить квалифицированному мастеру. Ведь работа требует определенных навыков. Перед монтажом откоса следует провести подготовку оконного проема. Подготовительные мероприятия в себя включают:
Очистку и продувку проема от мусора и пыли;
Обезжиривание пространства;
Заделывание щелей и стыков.
Подготовительные мероприятия избавит вас в дальнейшем от сквозняков, проникновения влаги в полость, которая находится между оконной рамой и самим откосом. По завершении подготовки можно приступать к установке. Производить монтаж отливов и откосов нужно в правильном порядке. Как правило, первым монтируется отлив. Порядок монтажа, следующий:
- При помощи уровня нужно сперва определить линию горизонта;
- Все имеющиеся стыки и щели нужно хорошо проклеить диффузной лентой;
- Далее необходимо закрепить сам отлив, воспользовавшись монтажной пеной;
- Удалить излишки монтажной пены после того, как она подсохнет;
- Обработать все швы влагостойким герметиком.
Пошаговая инструкция установки металлического отлива
Металлический отлив можно заказать или сделать самому. Как изготовить конструкцию самому мы расскажем ниже, а для примера будем пользоваться заказным элементом. За исходные данные примем следующие показатели: отлив из листовой стали, дом кирпичный с цементно-песчаной штукатуркой. Отлив устанавливается на оштукатуренные откосы.
Для работы понадобятся ножницы по металлу, если их нет, то допускается использование болгарки. Кроме этого нужно иметь угольник, маркер (карандаш по металлу очень плохо рисует), рулетку, отвертку и саморезы. Если нужно готовить основание цементно-песчаное, то приготовьте строительные инструменты.
Шаг 1. Проверьте состояние нижнего наружного откоса. Если оно не отвечает вышеперечисленным условиям, то придется штукатурить. Используйте обыкновенный цементно-песчаный раствор или клей для керамической плитки. Клеем можно только выравнивать небольшие неровности, а штукатурный раствор применяется, если место вообще не подготовлено. Во время работы следите, чтобы уклон был в пределах 10°.
Как сделать уклон?
- Набросайте слой раствора, толщина примерно на 1 см больше, чем нужно. Перед оштукатуриванием не забудьте смочить поверхности кирпичей.
- С помощью уровня на свежей штукатурке сделайте углубления под нужным углом. Вдавливайте его в массу, следите за показаниями шкалы. Канавки надо делать по краям и средине откоса.
- Ровным правилом постепенно снимайте излишки массы, контролируйте положение инструмента по сделанным канавкам.
- Гладилкой окончательно выровняйте поверхности. Продолжайте работы по установке отлива после того, как масса затвердеет.
Шаг 2. Снимите размеры отлива для оформления заказа. Он должен быть на несколько сантиметров длиннее и шире откоса.

Выполнение замеров

Замер ширины
Шаг 3. Замерьте параметры откоса и перенесите их на отлив.

Замер откоса
Далее есть два варианта производства работ.
По нанесенным меткам изгибайте отлив. Места перегибов немного подрезайте ножницами по металлу или болгаркой. Высота боковых отгибов примерно сантиметр. Следите, чтобы края были ровными и максимально плотно прилегали к боковым откосам. Мы уже упоминали, что не советуем устанавливать отливы таким методом, слишком велики риски появления в местах примыкания протечек. Есть более надежный вариант.
Подрезка отлива
Загиб края отлива
Болгаркой с алмазным диском прорежьте в штукатурке в нижней части откосов ровные канавки глубиной до сантиметра. Срез должен быть ровным и располагаться на уровне расположения отлива. Канавку в углу между рамой окна и откосом придется продолбить вручную, диск в это место недостанет.
Сделайте дину отлива примерно на два сантиметра больше ширины нижнего внешнего откоса
Загибать по бокам ничего не надо.
Вставьте отлив в одну канавку до упора, немного согните его и осторожно вставьте второй конец в противоположную канавку. Сместите по горизонтали таким образом, чтобы оба торца отлива располагались в канавке.
Небольшим шпателем раствором заделайте канавку
Массу набивайте плотно. Слегка влажной губкой подровняйте края, сделайте переход плавным и незаметным.
К сожалению, пластиковые отливы таким надежным способом установить нельзя. Они монтируются встык, место прилегания герметизируется герметиком. Торцы глушатся специальными вставками.
Шаг 4. Зафиксируйте саморезами изгиб отлива к оконной раме. На рамах имеются специальные углубления, следите, чтобы края изгиба не выходили за их пределы, изгиб отлива должен располагаться в канавке.

Снимите пленку с отлива

Установка отлива. Последняя примерка и подгонка

Нанесение пены

Укладка отлива на место
Если металлические отливы имеют длину более полутора метров, то можно во время установки пользоваться жидкими гвоздями, смазывайте поверхность основания и после этого ставьте отлив на место.

Отливы на окнах
Примерная стоимость при установке специалистами
Конечная стоимость монтажа отливов на окна складывается из стоимости отдельных услуг специалистов.
Крепление лучше всего производить шуруповертом, что значительно ускорить процесс установки
При беглом анализе данных видов строительных услуг, средняя стоимость установки отлива будет складываться из следующих затрат:
- подготовка и установка – от 350 – 400 рублей;
- переустановка и переделка – 500 рублей;
- обработка шва монтажной пеной – 250 рублей;
- обработка шва герметиком – 250 рублей;
- чистка окон и швов от пены – 300 рублей.
Таким образом, крепление отлива к пластиковому окну может обойтись в стоимость от 1150 рублей в самом простом варианте, без дополнительного утепления и отделки.
Оконный водоотлив для каркасного дома
Инструкция по установке
- В случае полукруглой формы оконного проёма лучше использовать медные конструкции. Материал хорошо сгибается, поэтому несоответствие фабричного изделия конкретному габариту проёма окна подгоняется за счёт постукивания по листу молотком.
- В случае слишком высокой цены медных изделий воспользоваться можно их заменителями: их выполняют по заказу, стоят они не дороже прямых аналогов.
- Один из вариантов оформления отливами из листовой стали — разрезание на поперечные части водоотлива и сборка скруглённого элемента.
Внимание
Если выполняется накладка нескольких кусков друг на друга, то нужен заступ полотна не менее 3–5 см, поскольку это минимизирует затекание влаги в щели между отдельными пластинами.
Устройство и замер необходимых материалов
Общая схема устройства оконного отлива: M — Верхняя полочка, D — водоотлив, K — капельник .
В зависимости от типа используемого отлива, устройство изделия может иметь ряд особенностей.
Тем не менее, любой отлив имеет схожую конструкцию, состоящую из следующих элементов:
- Верхняя полочка.
- Водоотлив.
- Нижний капенос или капельник.
Выбирая подходящий по устройству отлив на окна, следует обратить внимание на величину верхней полочки, так как при установке данный элемент не должен препятствовать водоотводу через отверстия на изделии
При выборе важно учитывать, что размер отливов для окон считается без “заходов” на стену откоса, то есть к исходной величине лучше прибавить 10-15 сантиметров для выполнения загибов
При выборе важно учитывать, что размер отливов для окон считается без “заходов” на стену откоса, то есть к исходной величине лучше прибавить 10-15 сантиметров для выполнения загибов
Общая схема расположения основных частей и материалов
Выполняя замер желательно брать во внимание следующие моменты:
- глубина и форма откосов – для фигурных и выступающих по форме наружных откосов, желательно брать максимальный размер для подрезки. При декоративных выступах могут быть выполнены напуски, размером в 2-3 сантиметра;
- при замерах ширины учитывается, что вынос капельника должен составлять минимум 20-30 миллиметров относительно плоскости стены;
- рекомендуемый угол сгиба отлива должен быть не менее 110-135 градусов;
- при размерах изделия более 1.5.-1.7 метров в длину, с торцевой части отлива желательно предусмотреть компенсационные зазоры, размером в 5-7 миллиметров, заполненные герметиком.
Последовательность работ
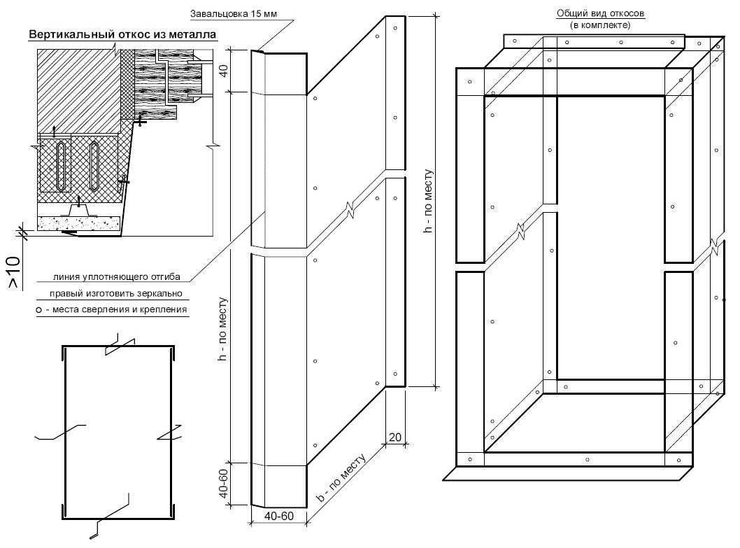
Установка металлических откосов на окна предполагает проведение замерочных работ. Ширина и высота изделия будут соответствовать внутренним и внешним параметрам проема. Изготовление верхнего, нижнего и боковых металлических элементов производится путем вырезания их из заготовленного металлического листа в соответствии с полученными измерениями.
Схема подрезки металлического откоса
Схема подрезки нижнего металлического отлива
Схема подрезки верхнего металлического отлива
На втором этапе работ происходит установка отлива, горизонтальное положение которого контролируется строительным уровнем. Нижний стык стены и оконной рамы оснащается специальным теплоизоляционным материалом и диффузионной лентой для шумоподавления и защиты от влаги.
Сначала необходимо установить отлив
Во время крепления отлива монтажную пену наносят на оконный проем и на отлив с внутренней стороны. Чтобы он не загнулся из-за расширения пены, на время его плотно прижимают. После того как отлив закреплен, приступают к монтажу металлических откосов.
Перед тем как устанавливать металлические откосы, необходимо те места, в которых они будут соприкасаться с рамой окна, обработать герметиком.
Металлические откосы закрепляют с помощью монтажной пены
Сначала устанавливают боковые элементы с соблюдением необходимого уклона изнутри наружу. Верхняя и нижняя части корректируются при помощи ножа в зависимости от уровня наклона.
Боковые элементы должны быть установлены в вертикальном положении и притянуты при помощи шурупов. Верхняя часть подгоняется под боковые элементы. Она выравнивается относительно внешних углов и закрепляется саморезами.
На завершающем этапе все места прилегания обрабатываются герметиком.
При монтаже откосов на фасад из профнастила используют горизонтальные перемычки
В случае когда фасад дома обшит профнастилом, при отделке оконных проемов необходимо использование горизонтальных перемычек. Это боковые полочки, изготовленные из профлиста, которые с одной стороны крепят к стене, а с другой – к металлопрофилю. Стальные наличники придают фасаду завершенность.
Дизайн оконных отливов
Внешний вид отливов — дело сугубо индивидуальное, а т.к. они играют и декоративную роль, то можно поиграть с вариантом форм и расцветок. Воплощая в жизнь свои дизайнерские идеи, главное не переусердствовать. Отлив должен гармонично дополнять оконную конструкцию и сочетаться с фасадом здания. Конфигурация отливов включает в себя как стандартные формы, так и полукруглые и фигурные варианты.
Производители предлагают также большой выбор расцветок от типовых белых и коричневых, до самых смелых и ярких оттенков. Благодаря возможности сделать металлический отлив с имитацией деревянной поверхности, можно без лишних затрат оформить окно из дерева или металлопластика с фактурой «под дерево».
Советы по выбору
Обратившимся к нам клиентам мы советуем делать заказ, руководствуясь следующими принципами:
- ширина наружного водоотлива рассчитывается исходя из расстояния от окна до наружного края оконного проема плюс 3-4 см;
- покрытие должно быть выбрано с учетом климатических особенностей местности. Так, сильные морозы полимерный состав не выдержит;
- необходимой деталью является заглушка для боковой части. Она предохраняет конструкцию от излома, обеспечивает максимальную защиту от попадания жидкости под отлив и пропитывания в монтажные швы. Заглушка придает отливу законченность и аккуратность;
- при монтаже наружного подоконника к разноцветным фрамугам, их цвет должен быть на полтона темнее. Светлым окнам рекомендуются белые водоотливы из пластика или натурального металлического – из алюминия.
Наши специалисты, выполняя установку, никогда не оставят просветы по бокам подоконника. Слив монтируется во всю ширину проема, обеспечивая надежную изоляцию прилегающих снизу материалов. Для клинкерных конструкций дизайнеры предлагают их оформление по периметру дома, стены, включая поворотные варианты. И с таким исполнением отливом мы справимся быстро и профессионально.





























